瀝青泵保溫方式-RCB瀝青保溫泵的介紹
瀝青泵保溫是指對瀝青保溫泵進行開機關預熱處理,目的是使在常溫狀態下凝固的瀝青液化,降低粘度,減小瀝青泵開機阻力。
瀝青保溫泵設計獨特,擁有保溫夾套,可以通過蒸汽、熱水或導熱油在保溫夾套內循環達到預熱保溫效果。
瀝青泵管道保溫加熱目的與瀝青泵相同,都是因為瀝青、樹脂等類似介質在常溫狀態下會凝固,常見加溫方式有兩種,一種是把管道做成瀝青泵設計原理,用粗細不同的兩根管形成保溫夾套,再通過蒸汽、熱水或導熱油在保溫夾套內循環達到預熱保溫效果;
二是能過電熱帶進行加溫,這一種也是比較常見比較簡單的方式,溫度可以根據自己需要選用不同伴熱帶。
瀝青保溫泵-RCB保溫瀝青齒輪泵
保溫瀝青泵適用于輸送介質溫度350℃,粘度不大于40mm2/s,不含固體顆粒的瀝青、石臘等各類在常溫下有凝固性以及高寒地區室外安裝和工藝過程中要求保溫的場合。可通入導熱油、熱水、蒸氣等對輸送介質進行加熱和保溫。
一、產品概述
該泵適用于輸送不含固體顆粒的重油、瀝青、膠類、樹脂、洗滌劑等各類在常溫下有凝固性的介質。尤其適用于高寒地區室外安裝和工藝過程中介質需要保溫的場合。

該泵的泵體設有空心夾層,并設有進出口法蘭,可用于導熱油、蒸汽、熱水等媒體對輸送的液體和泵進行加熱、保溫及冷卻。當輸送介質的粘度大于1500cst時,應采用減速傳動方式。一般情況下采用泵與電機直聯的傳動方式。
適用范圍:溫度≤250℃ ,粘度5-1500CST
性能范圍:流量1-324m3/h,壓力≤0.8Mpa
二、泵結構原理
1.外嚙合齒輪泵的工作原理
嚙合的吃了在泵體內旋轉時,輪齒不斷進入和退出嚙合。在吸入室,輪齒鑄件退出嚙合狀態,這樣吸入室的容積逐漸增多,壓力降低,液體在液面壓力的作用下進入吸入室,隨齒輪齒間進入排出室。在排出室,輪齒又逐漸進入嚙合狀態,齒輪的齒間逐漸被齒輪的輪齒占據,排出室的容積減少,排出室內的液體壓力升高,于是液體從泵的排出口被排出泵外,齒輪連續旋轉,上述過程不斷進行,形成連續的輸油過程.
2.泵的結構
泵主要由泵體、齒輪、軸、軸承、閥蓋、前蓋、后蓋、密封部件、聯軸器等部件組成。
軸端密封有兩種形式:填料密封、機械密封,用戶可根據具體的使用條件選用合適的密封結構。
泵有良好的自吸性,泵內運動部件利用輸送的液體實現潤滑,工作時可以不加引液和潤滑劑。

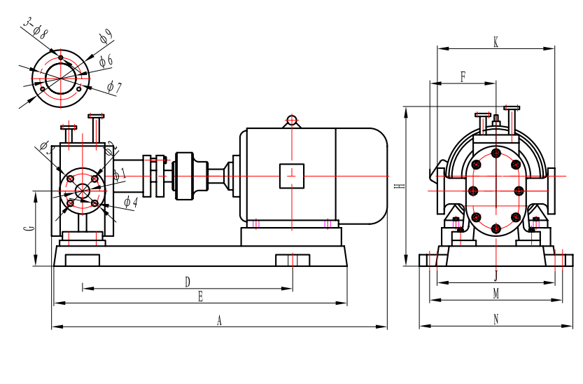
RCB瀝青保溫齒輪泵尺寸圖
三、性能參數表
規格型號 | 流量 | 壓力 | 吸入真 空高度 m | 口徑 | 配電機 | ||
m3/h | L/min | Mpa | mm | 功率 | 型號 | ||
RCB-1/0.6 | 1 | 16.6 | 0.36 | 3 | 16 | 1.5 | Y 90L -4 |
RCB-1/0.8 | 1 | 16.6 | 0.8 | 3 | 16 | 1.5 | Y 90L -4 |
RCB-2/0.36 | 2 | 33.3 | 0.36 | 3 | 25 | 1.5 | Y 90L -4 |
RCB-2/0.8 | 0.8 | 2.2 | Y 100L 1-4 | ||||
RCB-3/0.36 | 3 | 50 | 0.36 | 3 | 25 | 1.5 | Y 100L -6 |
RCB-3/0.8 | 0.8 | 2.2 | Y 112M -6 | ||||
RCB-5/0.36 | 5 | 83.3 | 0.36 | 3 | 40 | 2.2 | Y 100L -4 |
RCB-5/0.8 | 0.8 | 4 | Y 112M -4 | ||||
RCB-6/0.36 | 6 | 100 | 0.36 | 3 | 40 | 2.2 | Y 132M -6 |
RCB-6/0.8 | 0.8 | 3 | 4 | Y 132M 1-6 | |||
RCB-8/0.36 | 8 | 133 | 0.36 | 3 | 50 | 4 | Y 112M -4 |
RCB-8/0.8 | 0.8 | 3 | 5.5 | Y132S-4 | |||
RCB-10/0.36 | 10 | 167 | 0.36 | 3 | 50 | 4 | Y 132M -6 |
RCB-10/0.8 | 0.8 | 3 | 5.5 | Y 132M2 -4 | |||
RCB-12/0.36 | 12 | 200 | 0.36 | 3 | 50 | 4 | Y 132M -6 |
RCB-12/0.8 | 0.8 | 3 | 5.5 | Y 132M2 -6 | |||
RCB-18/0.36 | 18 | 300 | 0.36 | 3 | 70 | 5.5 | Y 132M2 -6 |
RCB-18/0.8 | 0.8 | 3 | 7.5 | Y 160M -6 | |||
RCB-29/0.36 | 29 | 483.3 | 0.36 | 3 | 70 | 7.5 | Y 132M -4 |
RCB-29/0.8 | 0.8 | 3 | 11 | Y 160M -4 | |||
RCB-32/0.36 | 32 | 534 | 0.36 | 3 | 100 | 11 | Y 160L -6 |
RCB-32/0.8 | 0.8 | 3 | 15 | Y 180L -6 | |||
RCB-38/0.28 | 38 | 633 | 0.36 | 3 | 100 | 11 | Y 160L -6 |
RCB-38/0.36 | 0.8 | 3 | 15 | Y 180L -6 | |||
RCB-58/0.28 | 58 | 960 | 0.36 | 3 | 100 | 18.5 | Y 180M -4 |
RCB-58/0.36 | 0.8 | 3 | 22 | Y 180L -4 | |||
RCB-72/0.28 | 72 | 1200 | 0.28 | 3 | 150 | 37 | Y250S-8 |
RCB-96/0.28 | 96 | 1600 | 0.28 | 3 | 150 | 45 | Y280S-6 |
RCB-110/0.28 | 110 | 1800 | 0.28 | 3 | 200 | 55 | Y315S-8 |
RCB-150/0.28 | 150 | 2500 | 0.28 | 3 | 200 | 75 | Y315S-6 |
RCB-170/0.28 | 228 | 3800 | 0.28 | 3 | 250 | 90 | Y 315L -6 |
RCB-230/0.28 | 324 | 5400 | 0.28 | 3 | 250 | 110 | Y 315L -6 |
天津遠東泵業專業生產瀝青保溫泵,用來輸送瀝青的泵有很多,還包括3GBW保溫三螺桿泵,高粘度保溫瀝青泵,雙螺桿瀝青保溫泵等。這里就不向大家說明了,關注遠東泵業官網,了解更多技術新聞。電話:4008-737-966
同類文章排行
- NYP瀝青保溫泵使用碳鋼有什么好處-NYP高粘度泵
- RCB系列保溫齒輪泵運行注意事項-齒輪泵廠家
- NYP高粘度泵的結構及其優點-高粘度泵廠家
- NYP高粘度泵出現噪音該怎么解決-高粘度泵生產廠家
- 船用不銹鋼齒輪泵的應用-不銹鋼齒輪泵|廠家直銷
- YCB不銹鋼磁力泵的選型步驟-不銹鋼磁力泵|廠家直銷
- RCB保溫齒輪泵的安裝與使用-保溫齒輪泵|廠家直銷
- G系列單螺桿泵該如何保養-天津螺桿泵|廠家直銷
- 泵在各個領域中的做用-天津遠東泵業
- 3G三螺桿泵預防及改進措施-天津螺桿泵|價格實惠
最新資訊文章
您的瀏覽歷史





